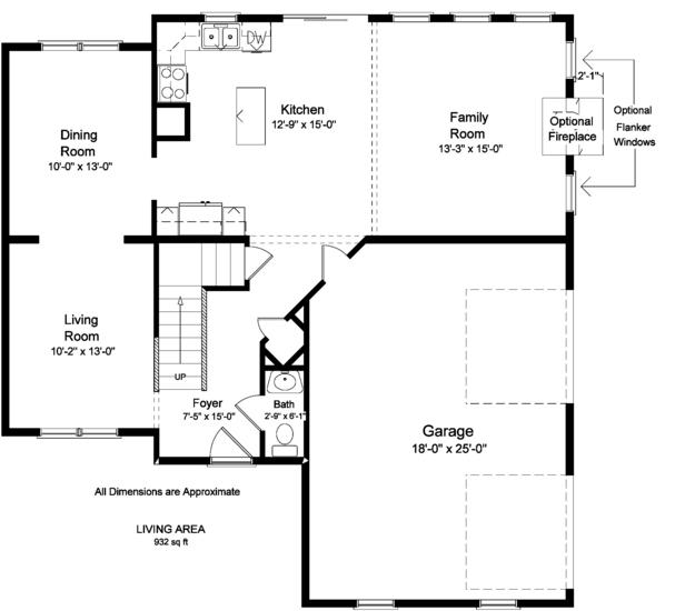
Birchwood B
$225,000.00*
- 2112 Sq. Ft.
- 4 Bedrooms
- 2.5 Bathrooms
*Prices do not include Freight, Taxes and State Labels
Renderings are for illustration purposes only and may vary in precise detail from plans & specifications.
Custom Modular Direct in house CAD design dimensions may vary from the manufacturers & will not be formalized until approved by manufacturers engineering department.
©2003 Custom Modular Direct . All Rights Reserved


